Trust RE Group

call +39 3757498807 location_on P.zza Mazzini, 12 Diano Marina (Imperia) mail gianlucaformica79@gmail.com

Rustico a Andora

location_on Località Moltedo, 31 - Andora (Liguria)

€ 139.000

Riferimento: and16

Dettagli

Tipologia: Rustico
Tipo contratto:
Vendita
Città: Andora
Indirizzo: Località Moltedo, 31
Locali: 3
Bagni: 1
Camere: -
Superficie: 81
Anno: -
Stato immobile: Ristrutturato

Ambienti

check Balconi
check Terrazzo
check Giardino
check Terreno - Mq: 3.000
check Posti auto scoperti

Descrizione

Trust RE Group propone in vendita a solo 8 km dal mare di Andora antico rustico tutto completamente ristrutturato. Disposto su 2 livelli, così suddivisi: al piano terra la cucina abitabile, il soggiorno ed il bagno, mentre al piano superiore troviamo una grande camera da letto matrimoniale dalla quale si accede sia al balcone che al grande terrazzo. Tutto in torno il terreno di proprietà di circa 3000 mq. Il riscaldamento è a mezzo pompe di calore. Per maggiori informazioni o prendere appuntamento non esitate a contattarci.

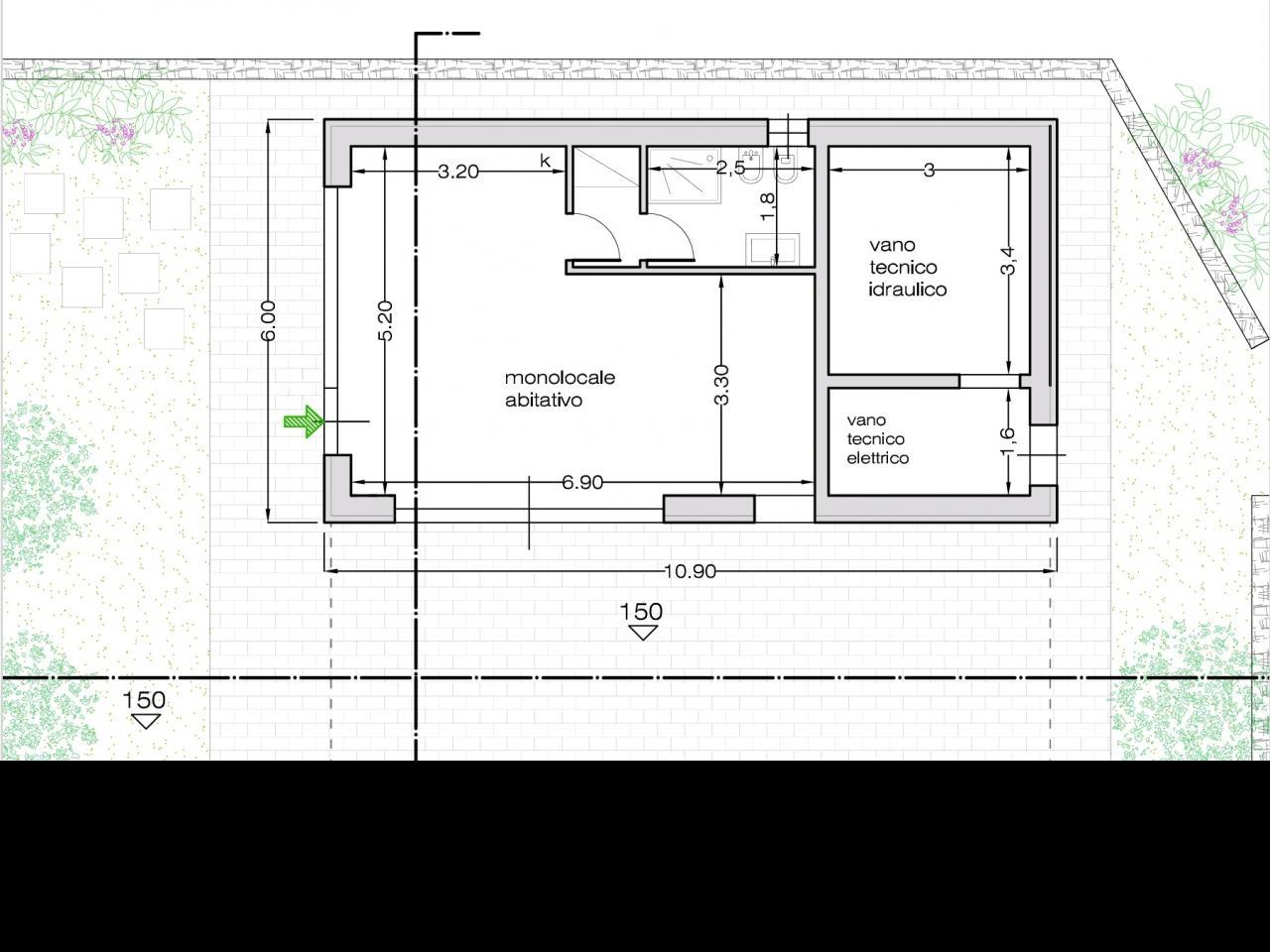
Planimetrie

Localizzazione

Recensioni

Vota e scrivi di seguito una recensione per l'immobile in questione

STAI CERCANDO DI VENDERE CASA?

Affidaci l'incarico e ci penseremo noi.

call

CHIAMACI ORA

3757498807

L'immobile è stato aggiunto ai preferiti.
arrow_upward